Berlin-Wilhelmsruh

Hertz7 · Mehrfamilienhaus im Stadtteil Wilhelmsruh / Pankow

Das Projekt Hertz7 entwickelt ein modernes Mehrfamilienhaus mit klarer Architektursprache und effizient organisierten Grundrissen.

Hertz7 – Außenansicht
Hertz7 – Ansicht 1
Hertz7 – Ansicht 2
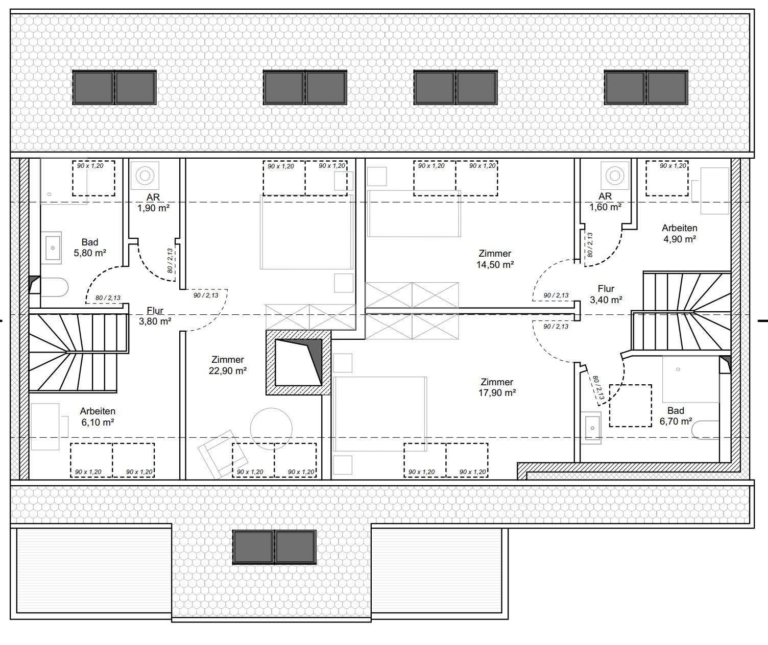
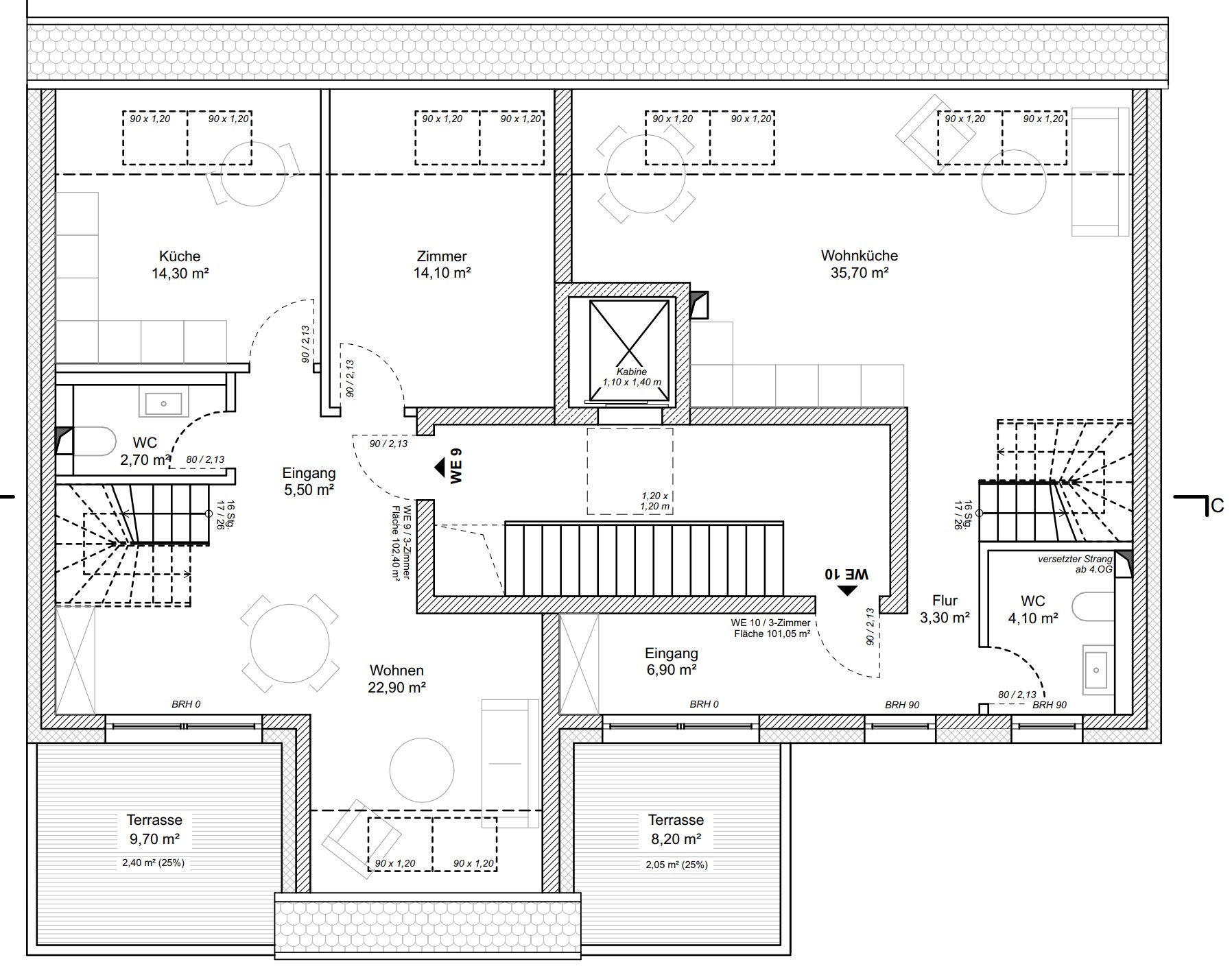
Hertz7 – Grundriss 0a
Hertz7 – Grundriss 2
Hertz7 – Grundriss 3
Hertz7 – Grundriss 4
Hertz7 – Schnitt 1
Hertz7 – Schnitt 2

Daten & Fakten

Typ
Mehrfamilienhaus
Flächen
MFH mit 10 Wohnungen (50 bis 110 m²) und 1 Gewerbeeinheit ca. 40 m²
Standard
KfW-40, Wärmepumpe, PV, Fußbodenheizung
Architektur
Moderne Linien · helle Fassaden
Nutzung
Familiengerechte Wohnungen mit Außenflächen
Status
Ausführungsplanung · Fertigstellung geplant 2026

Beschreibung

Das Projekt Hertz7 entwickelt ein modernes Mehrfamilienhaus mit klarer Architektursprache und effizient organisierten Grundrissen. Die Wohnungen sind auf urbane, familienfreundliche Nutzung ausgelegt; Balkone und Außenbereiche steigern die Wohnqualität. Energetisch wird ein hoher Standard mit Wärmepumpe, Photovoltaik und Fußbodenheizung umgesetzt.

Unser Leistungsanteil

  • Projektentwicklung & Optimierung der Wohnflächen
  • Genehmigungs- & Ausführungsplanung (LPH 1–8)
  • GU/GÜ – schlüsselfertige Realisierung

Lage

In Berlin-Pankow, fußläufig zur S-Bahn Wilhelmsruh; familienfreundliche Infrastruktur, kurze Wege.

📍 Standort in Google Maps öffnen

← Zurück zur Projektübersicht